Para 84 Farmstead

Great Elm

 

A contemporary farmstead, set within re-wilded land, that redefines how to create a sustainable house in the Somerset countryside.

This project embodies many of our studio’s ambitions: how to create contemporary architecture within a rural setting, how to deploy low-carbon methods of construction and zero carbon-in-use technologies, and how to achieve quality and durability on a workable budget. The result is a home that feels both spacious and intimate, with light-filled spaces and a natural connection to the land.

Located on the edge of Nether Compton, a quiet village in north-west Dorset, the long, mono-pitched building retains the distinctive volume of the original structure, creating bright and generous spaces inside. 

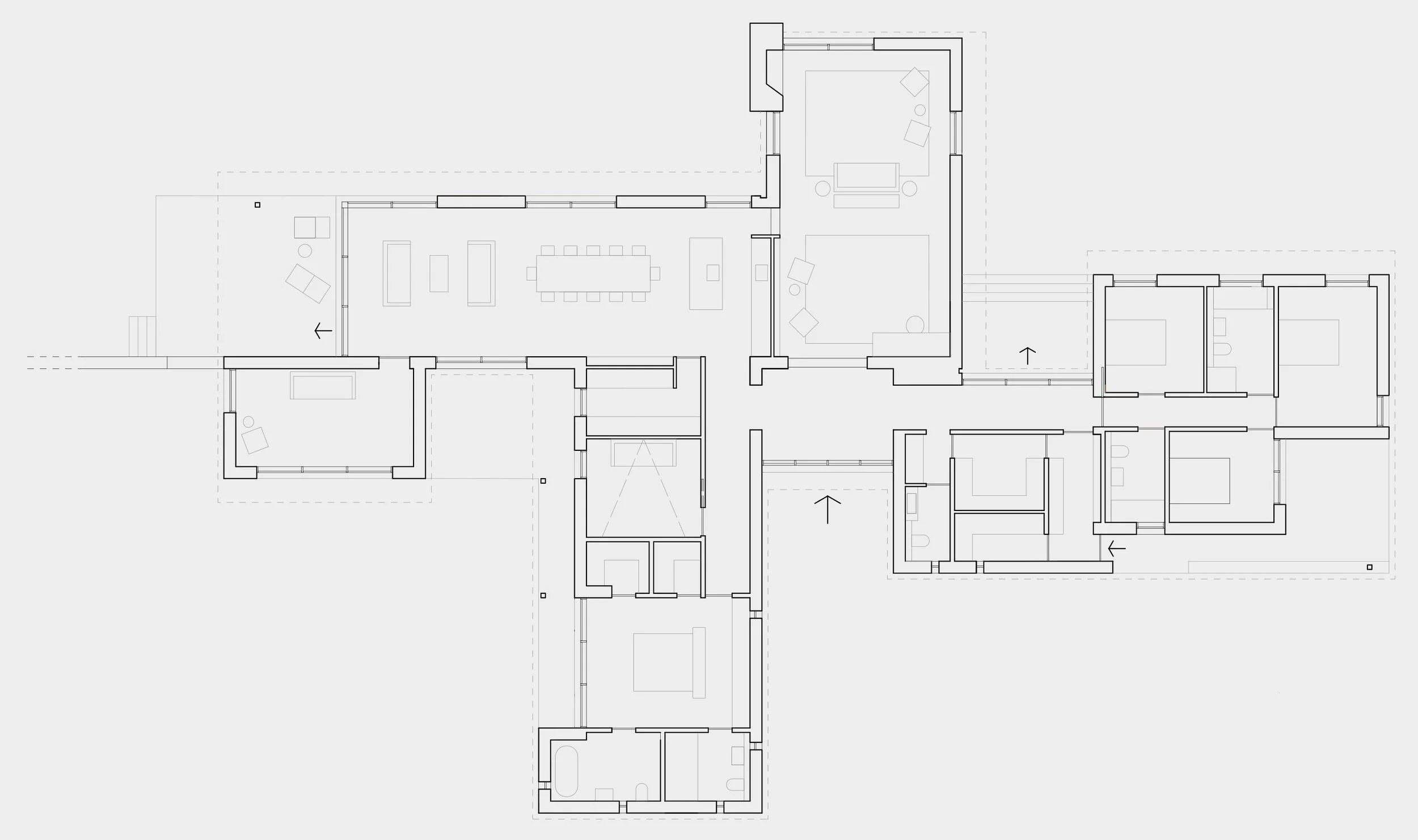
The north end of the plan contains the living spaces - an open-plan kitchen/dining space and separate living room - while the southern end contains the bedrooms and bathrooms, with all spaces connected off a long hallway. In the centre of the home is a versatile room that can be used as a snug, home office or fourth bedroom.

Steel beams and metal composite roof structure are expressed, balanced by a muted pallet of natural materials to create spaces that are calm and honest in character.

This project is a one-off development by Bindloss Dawes, where we have acted as both developer and Architect. Completed in October 2025, the house is for sale with THE MODERN HOUSE – please follow this link for more details.

Photography by Dave Watts

Drone Photo by the Modern House

 

Our journal

 
White.png